Expansion of sewage treatment plant

Location

Möttingen, Bavaria, Germany

Project type

Formwork/Reinforcement

Date

2023

Cubature

/

Möttingen, Bavaria, Germany

Preparation of formwork and reinforcement plans, timber/steel cross-sections with details

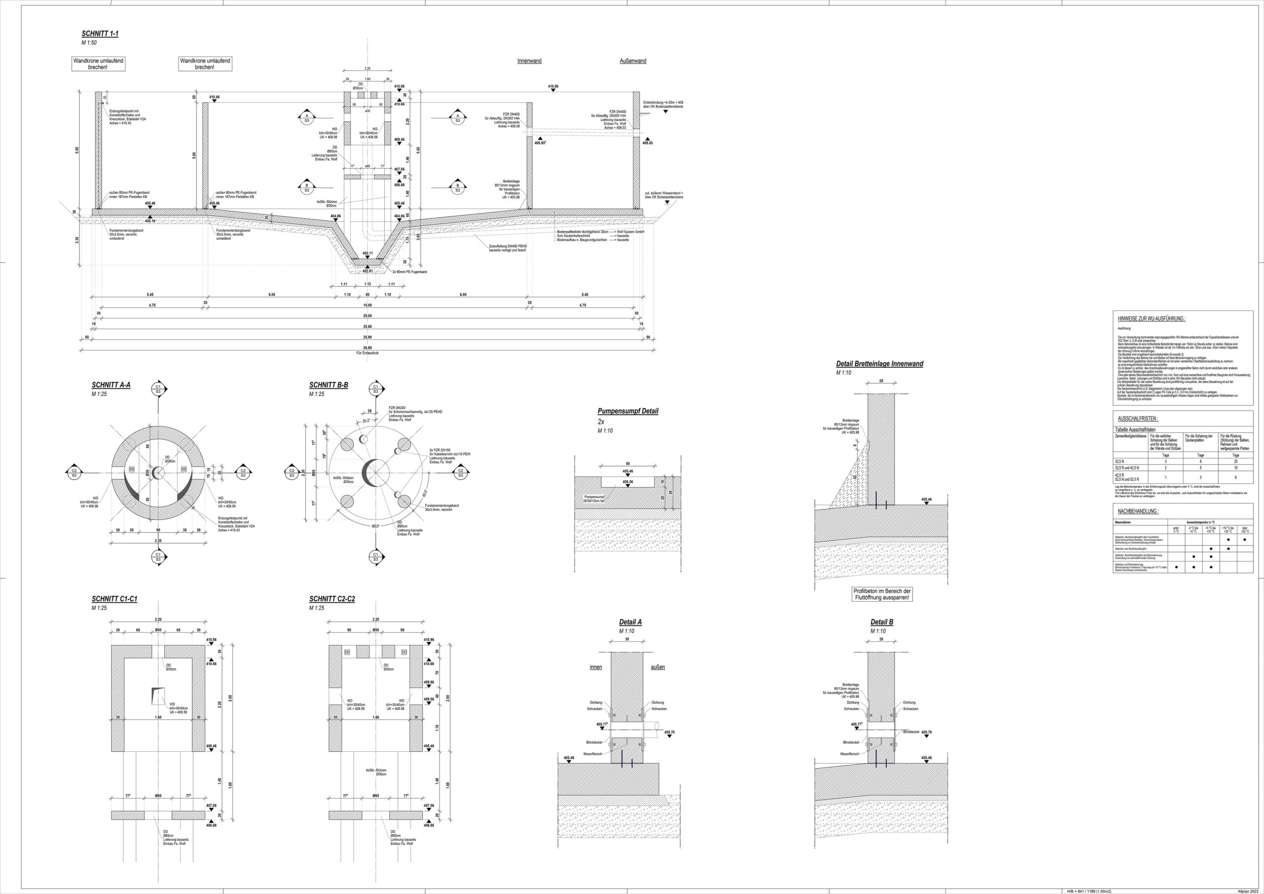
On behalf of our partner structural-engineering company from Germany, formwork and reinforcement plans, along with detailed plans featuring timber and steel cross-sections, for an expansion of a sewage treatment plant were drawn up. The new construction consists of a new treatment basin, a distribution basin and an administrative building (skeletal timber and steel construction).

Cookies

We use cookies to help us make your experience one of the best here. If they are not to your liking, you can disable them or read about them in the privacy policy.