Mixed-use building complex

Location

Stuttgart, Germany

Project type

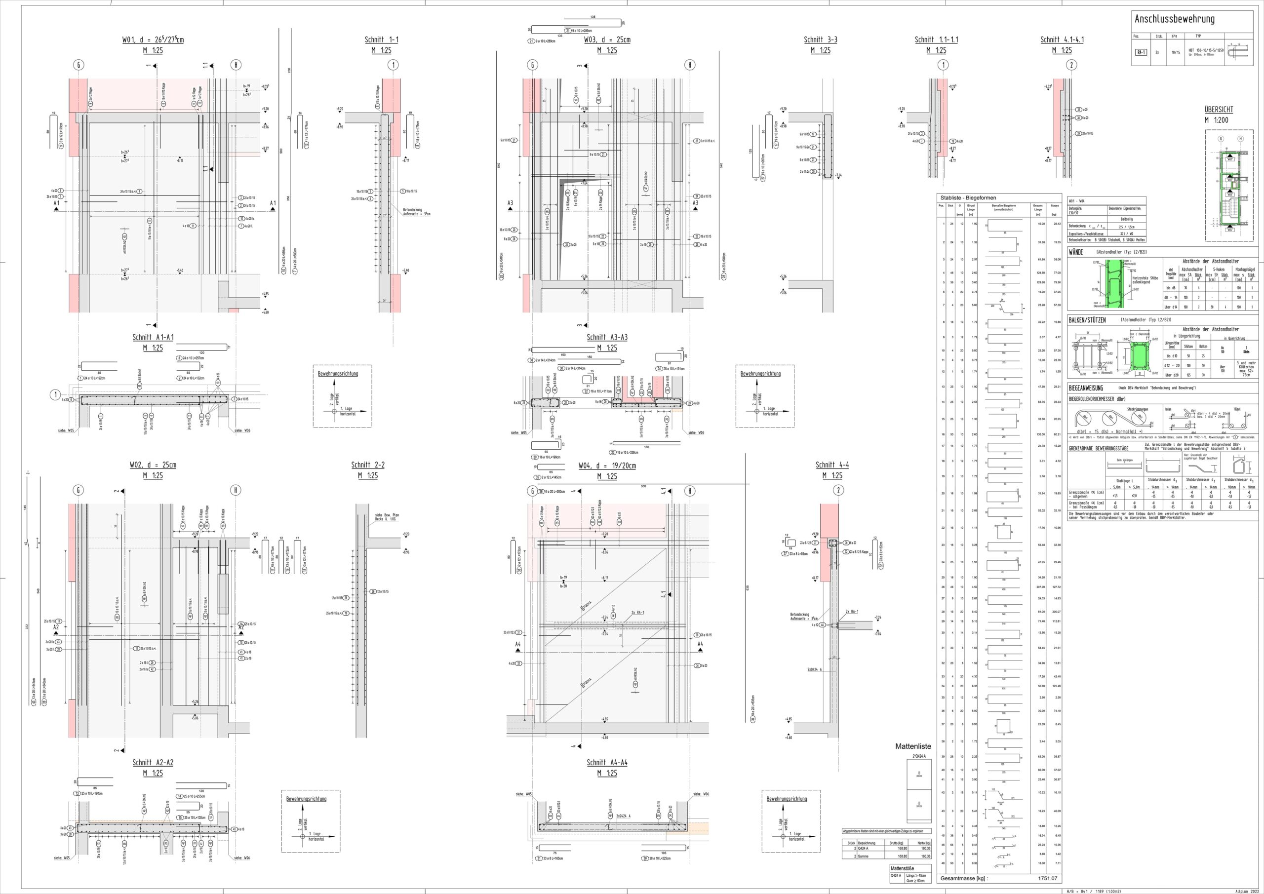
Reinforcement plans

Date

2023 / 2024

Cubature

39.300 m³

Stuttgart, Baden-Württemberg, Germany

Preparation of reinforcement plans

The reinforcement plans for a mixed-use building complex were developed on behalf of our partner structural-engineering planner from Germany. The lower three floors are partially built underground, owing to the building’s location on a relatively steep slope. The structure encompasses rental apartments, a kindergarten, a community center, and a supermarket.

Cookies

We use cookies to help us make your experience one of the best here. If they are not to your liking, you can disable them or read about them in the privacy policy.